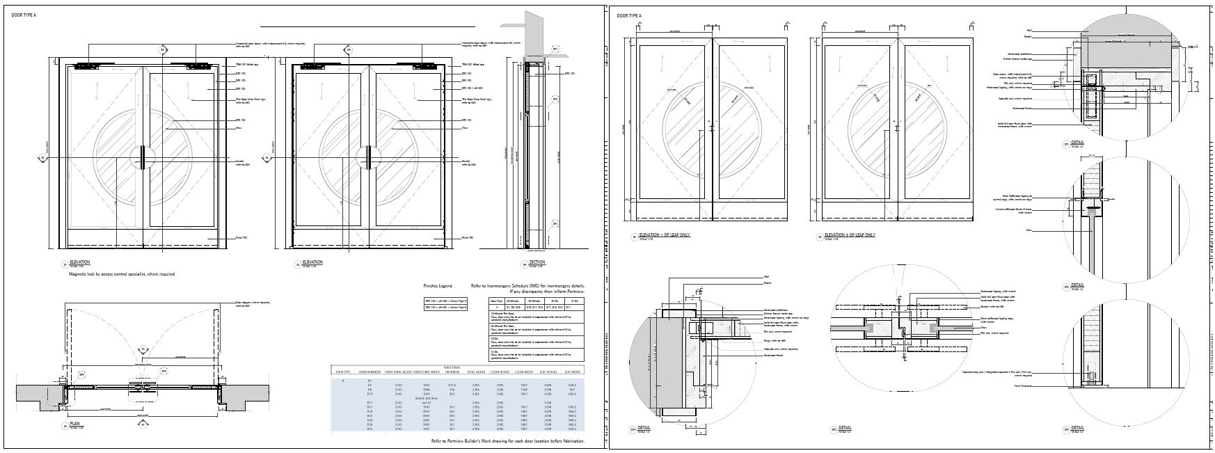
Our 2D Computer Aided Drafting & Design services cover all stages of the development process.
We specialize in coordinated detail design and value engineering. We prepare detailed comprehensive drawings and construction documentation packages from concept sketches, 3D images and more advanced design intent packages.
We prepare shop drawings, cutting schedules, etc. for the construction and manufacturing industries.


